 
 
 
 
 
 
 
 
 
 
 
 
 
 
MANBER JEFFRIES HOUSE
Stephen Lawrence Prize 2023 
Shortlisted
RIBA London Small Project of the Year Award 2023 Winner
RIBA London Award 2023 Winner
Brick Award 2023 Commended
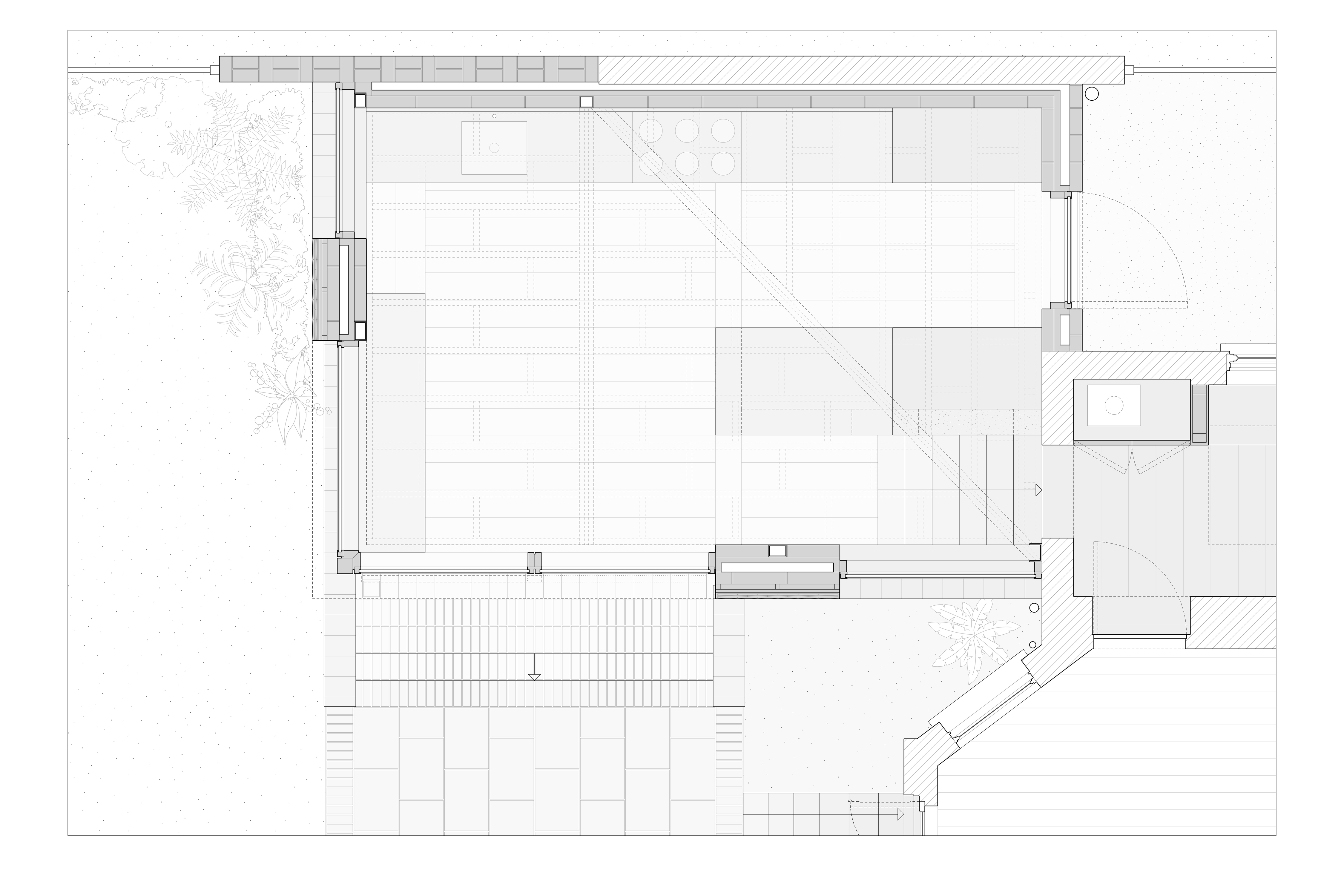
Manber Jeffries House is an intricate, single storey, rear and side extension to the ground floor flat of a substantial, semi-detached, Victorian villa in Willesden Green, London. The project reworks a small area of the existing ground floor of the property and also provides a new kitchen and dining room extension that simultaneously operates as a vaulted garden room for the home.
The roof lines of the extension fall with the internal circulation requirements, allowing the extension to manage the transition from the high level of the existing property’s ground floor to the lower level of the garden beyond. The extension is also designed to fall in height, to match and relate to the steep pitch of an existing lean-to construction, which had previously contained a very small kitchen. Key to the project was the retention and extension of a substantial brick party wall that had historically supported a symmetrical pair of pitched garden outbuildings and lavatories. These were already semi-demolished, and had been heavily neglected in recent decades. Victorian glasshouses and ancillary garden buildings, built as appendages to the boundary walls of formal gardens, formed a particularly strong inspiration for both the formal language and the materiality of the project.
Budgetary constraints demanded that an extreme rigour be applied to an informed use of standardised building components to form two contrasting skins that externally and internally line an ambitious structural steel framing configuration. Although heavily interdependent, the openings of the red outer façade slide past the structural steelwork behind when they directly interface with either the host property or the party wall. Demolition of the host property was purposefully kept to a minimum. The exposed steelwork supports a complex roof geometry, and cantilevers in two directions to form an elaborate tectonic to the forming of openings to the garden beyond. A focus on detail, and a deliberate honesty and celebration of stark, layered construction is employed throughout.
Architect: James Alder Architects
Client: Private
Structural Engineer: Alex Mark
Main Contractor: London Expert Builders Ltd
Photography: Hampus Berndtson
Completed: March 2021
Floor Area: 26 sqm
Sector: Residential
Total Cost: Private
Procurement: Traditional. RIBA Domestic Building Contract 2018
Location: Willesden Green, London
	RIBA London Small Project of the Year Award 2023 Winner
RIBA London Award 2023 Winner
Brick Award 2023 Commended
Manber Jeffries House is an intricate, single storey, rear and side extension to the ground floor flat of a substantial, semi-detached, Victorian villa in Willesden Green, London. The project reworks a small area of the existing ground floor of the property and also provides a new kitchen and dining room extension that simultaneously operates as a vaulted garden room for the home.
The roof lines of the extension fall with the internal circulation requirements, allowing the extension to manage the transition from the high level of the existing property’s ground floor to the lower level of the garden beyond. The extension is also designed to fall in height, to match and relate to the steep pitch of an existing lean-to construction, which had previously contained a very small kitchen. Key to the project was the retention and extension of a substantial brick party wall that had historically supported a symmetrical pair of pitched garden outbuildings and lavatories. These were already semi-demolished, and had been heavily neglected in recent decades. Victorian glasshouses and ancillary garden buildings, built as appendages to the boundary walls of formal gardens, formed a particularly strong inspiration for both the formal language and the materiality of the project.
Budgetary constraints demanded that an extreme rigour be applied to an informed use of standardised building components to form two contrasting skins that externally and internally line an ambitious structural steel framing configuration. Although heavily interdependent, the openings of the red outer façade slide past the structural steelwork behind when they directly interface with either the host property or the party wall. Demolition of the host property was purposefully kept to a minimum. The exposed steelwork supports a complex roof geometry, and cantilevers in two directions to form an elaborate tectonic to the forming of openings to the garden beyond. A focus on detail, and a deliberate honesty and celebration of stark, layered construction is employed throughout.
Architect: James Alder Architects
Client: Private
Structural Engineer: Alex Mark
Main Contractor: London Expert Builders Ltd
Photography: Hampus Berndtson
Completed: March 2021
Floor Area: 26 sqm
Sector: Residential
Total Cost: Private
Procurement: Traditional. RIBA Domestic Building Contract 2018
Location: Willesden Green, London